- トップページ
- ウィステリア青葉台
一棟売アパート

ウィステリア青葉台
情報更新日:2026/02/04 次回更新予定日:2026/02/18
所在地神奈川県横浜市青葉区しらとり台3-56[周辺地図]
交 通東急田園都市線「青葉台」駅徒歩6分





☆「青葉台」駅徒歩6分☆2016年築、1LDK×2☆年収2,844,000円、利回り4.83%☆賃貸中☆
物件詳細情報
物件No.50000007475
| 所在地 | 神奈川県横浜市青葉区しらとり台3-56 | ||
|---|---|---|---|
| 交通 | 東急田園都市線「青葉台」駅徒歩6分 | ||
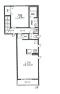
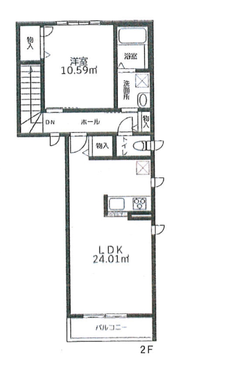
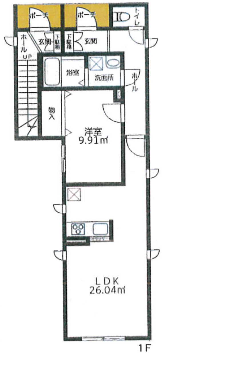
| 間取 | 1LDK | ||
| 土地面積 | 139.74m² 公簿 | ||
| 建物面積 | 109.22m² 公簿 | ||
| 総戸数 | 全2戸 | 建ぺい率 | 40% |
| 容積率 | 80% | 権利種類 | 所有権 |
| 接道 | 北西側8M道路に4.6M接道 | 国土法届出 | 不要 |
| 構造・規模 | 軽量鉄骨造 2階建て | 築年・入居 | 2016年3月 |
| 地目 | 宅地 | 用途地域 | 第一種低層住居専用地域 |
| 地勢 | 平坦 | 現況 | 満室 |
| 都市計画 | 市街化区域 | 管理形態 | 無 自主管理 |
| 引渡時期 | 相談 | 取引態様 | 専任媒介 |
| 設備 | 駐輪場有り、バス、トイレ別、温水洗浄便座、エアコン、BS対応、室内洗濯機置き場、TVモニター付きインターホン | ||
- 想定利回り:満室時表面利回り(年)=賃料×12ヶ月/購入価格※賃料は満室時を想定し、算出しております。
- 利回りとは、当該不動産の1年間の予定賃料収入の不動産取得対価に対する割合であり、公租公課その他当該物件を維持するために必要な費用の控除前のものです。また、予定賃料収入が確実に得られる事を保証するものではありません。
- ※価格は物件の代金総額を表示しており、消費税が課税される場合は税込み価格です。(1,000円未満は切り上げ。)
税率は引き渡し時期により異なりますので、各物件の詳細につきましてはお問い合わせください。 - ※敷地権利が借地権のものは価格に権利金を含みます。
- ※制作中に内容が変更される場合もありますので、あらかじめご了承ください。
- ※購入の前には物件内容や契約条件についてご自身で十分な確認をしていただくようにお願いいたします。
- ※完成予想図はいずれも外構、植栽、外観等実際のものとは多少異なることがあります。
- ※CG合成の画像の場合、実際とは多少異なる場合があります。
周辺地図
周辺施設一覧
- ショッピングセンター
- スーパー
- コンビニ
- ドラッグストア
- ホームセンター
- 飲食店
- その他店舗
- 商店街
- 大学
- 専門学校
- 高校・高専
- 中学校
- 小学校
- 保育園
- 幼稚園
- 公民館・児童館
- 病院
- 郵便局
- 役所
- 図書館
- 金融機関
- 警察・消防
- 趣味・娯楽施設
- 公園・運動施設
- 周辺の街並み
- 駅
- その他
- トップページ
- ウィステリア青葉台




